Ontruimingsplattegrond en Ontruimingsplan
Vaste prijs & conform de NEN!

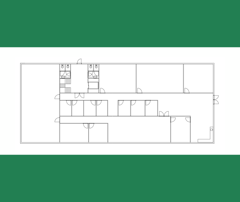
Ontruimingsplattegrond
Wij verzorgen het volledige traject van uw ontruimingsplattegronden. Deze zijn cruciaal voor snelle evacuatie en worden opgesteld volgens de geldende normen (NEN 1414), met duidelijke aanduidingen van vluchtroutes en veiligheidsmiddelen.

Aanpassen ontruimingsplattegrond
Is uw gebouw recent verbouwd, of zijn er
wijzigingen in de vluchtroute en/of blusmiddelen? Het actueel houden van de ontruimingsplattegronden is essentieel voor de veiligheid van de bezoekers en werknemers. Wij passen de bestaande vluchtplattegronden snel en nauwkeurig voor je aan!

Ontruimingsplan
Het Ontruimingsplan conform de NEN 8112 is het schriftelijke draaiboek voor noodsituaties. Dit gedetailleerde plan beschrijft de procedures, taakverdeling van de BHV-organisatie en communicatiestromen tijdens een calamiteit, van alarmering tot nazorg.

Table Top plattegrond
Til de BHV-trainingen naar een hoger niveau met onze Table Top Plattegronden. Deze plattegrond maakt het mogelijk om realistische scenario's te simuleren, communicatie te oefenen en logistieke knelpunten zonder risico te analyseren.

Overige plattegronden
Naast NEN 1414 ontruimingsplattegronden verzorgen wij ook andere tekeningen.

Kliklijsten & meer
Wij zorgen voor een hoogwaardige afwerking van de plattegronden, klaar voor directe montage. Kies uit verschillende opties, zoals afdrukken op palboard of complete sets met kliklijsten voor eenvoudige wissel en optimale zichtbaarheid op diverse locaties.